

Casa Guzar impresiona desde el primer vistazo con una fachada moderna que combina elementos en grises como el hormigón visto, elementos de blanco, negro y toques maderados, creando una estética contemporánea dinámica y elegante.
El juego de volúmenes en sus fachadas se destaca, aportando un diseño continuo y fluido inspirado en la tendencia del movimiento industrial.

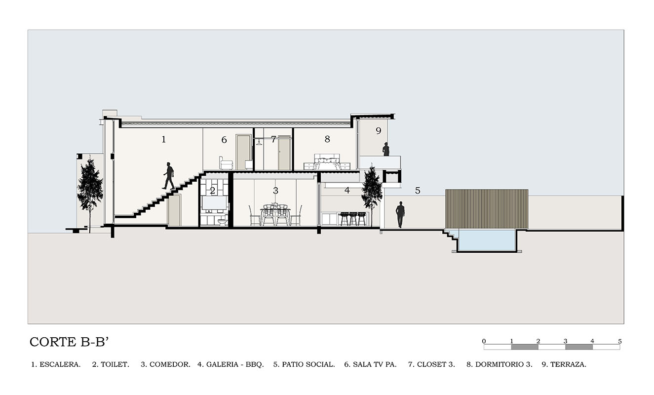
Desde la fachada frontal al ingresar, te encuentras con un interior luminoso por su basta presencia de ventanales de piso a techo en diferentes alturas creando ambientes bien equilibrados con tratamiento de panelados y acabados en paredes tipo hormigón al ácido en tonos obscuros a doble altura tanto en escalera como en sala.
La iluminación está cuidadosamente planificada para resaltar los espacios contrastados con todos los elementos y decoración interior de esta composición, creando así una atmósfera con identidad y estilo propios con el más adecuado confort y funcionalidad.

Los tonos neutros predominan en la cromática de los ambientes, la cocina resalta como protagonista con una isla de lujo que ofrece tanto funcionalidad como elegancia, incluso su campana extractora tiene silueta de lámpara industrial con un toque glam. Los electrodomésticos de alta gama y los acabados de primera calidad complementan este espacio exhibiéndose muy sobriamente como parte de la decoración, convirtiéndo este ambiente en el lugar ideal para preparar y disfrutar de comidas o bebidas con estilo en un ambiente muy relajado el cual se integra armoniosamente al resto de áreas sociales de la casa, la verdad es la nueva tendencia de todo habitad a la vanguardia.

Respecto a el exterior en fachada posterior, nos recibe una impresionante piscina que se mimetiza con el revestimiento del patio en un tono maderado grisáceo rompiendo con los esquemas sobre la tradición de recubrir a las piscinas con azulejos o porcelanicos celestes o de tonos fríos; para así perpetuar ese afán de continuidad y fluidez tan distintivo de nuestras obras y proyectos. Continuando con la exposición de la propuesta sobre el tratamiento y diseño de la piscina, es importante el detalle que marca el contraste para esta área con un elemento tipo monolito a modo de gran muro cascada que pareciera nacer del agua de la piscina, el cual es tratado en un material tipo piedra obscura que añade un adicional toque de lujo y relajación para el conjunto.

Esta importante área de esparcimiento es parte integral de nuestra filosofía donde las casas viven hacia el exterior y establecen un claro diálogo entre sus áreas exteriores abiertas como las ya mencionadas y las exteriores techadas como terrazas, balcones, galerías y pérgolas con sus respectivos bbq y hornos de ser el caso o incluso bares al aire libre.

Finalmente el paisajismo es un componente primordial en la propuesta de esta casa ya que esta rodeada por múltiples detalles de jardines interiores, arreglos de jardín tipo oasis en fachada frontal y patio, también jardines verticales ubicados estratégicamente en corredores con vista a las áreas sociales sean de cocina, de recibidor o sala, incluso en las áreas de descanso se disponen más jardines en jardineras fijas parte de la volumetria de la fachada tanto en terrazas como balcones a modo muy apropiado.




